073 – 760 18 99
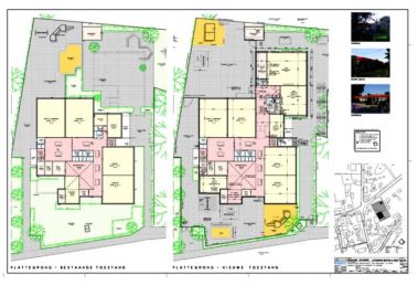
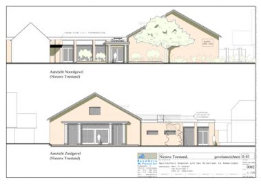
Hieronder ziet u een korte samenvatting van diverse gerealiseerde en lopende projecten: